湖南柏竣建筑工程

层    数 结构形式 建筑风格
开    间
10.00m
占地面积
120.00㎡
建筑面积
433.90㎡
进    深
12.00m
主体造价
56万~70万(仅供参考)
制作软件
AutoCAD
图纸内容
建筑图
建筑设计说明,构造表,一层平面图,二层平面图,三层平面图,四层平面图闷顶层平面,屋顶层平面图,立面图,剖面图,楼梯平面详图,节点详图,墙身大样图,门窗大样图,门窗表
结构图
结构设计说明,基础大样图,基础施工图,基础顶~屋顶柱施工图,一层结构施工图,二层结构施工图,三层结构施工图,四层结构施工图,屋顶层施工图,大样图。
给排水图
给排水设计说明,一层给排水平面图,二层给排水平面图,三层给排水平面图,四层给排水平面图,屋顶层排水平面图,给排水系统原理图,卫生间给排水详图,化粪池大样图,污水检查井大样图。
电气图
电气设计说明,电气设计说明,主要设备及材料表,配电箱系统图,弱电系统图,一层照明平面图,二层照明平面图,三层照明平面图,四层照明平面图,一层插座平面图,二层插座平面图,三层插座平面图,四层插座平面图,一层弱电平面图,二层弱电平面图,三层弱电平面图,四层弱电平面图,屋面防雷平面图。
设计功能
一层
玄关,客厅,餐厅,楼梯,卧室,公卫
二层
2卧室,内卫,公卫,楼梯,阳台
三层
3卧室,2内卫,公卫,楼梯,书房,阳台
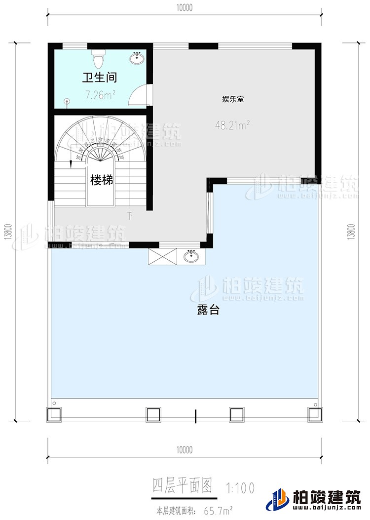
四层
娱乐室,公卫,楼梯,露台
图纸展示
  • 建筑效果图

    建筑效果图-简欧风格

    平面方案图

    一层:玄关,客厅,餐厅,楼梯,卧室,公卫

    一层:玄关,客厅,餐厅,楼梯,卧室,公卫

    二层:2卧室,内卫,公卫,楼梯,阳台

    二层:2卧室,内卫,公卫,楼梯,阳台

    三层:3卧室,2内卫,公卫,楼梯,书房,阳台

    三层:3卧室,2内卫,公卫,楼梯,书房,阳台

    四层:娱乐室,公卫,楼梯,露台

    四层:娱乐室,公卫,楼梯,露台
累计评论 0

湖南柏竣建筑工程:没有任何评论


农村四层简单欧式别墅设计图纸
图纸编号:BZ401
图纸价格:¥598元
支付方式:支付宝付款银行转账
承诺支持:全国免费包邮货到付款

请您在下订单前与在线客服确认配送范围。

您在本站订购的图纸,我们客服人员会电话与您联系确认图纸编号、收货信息等, 感谢您对本站的关注,祝您网上购物愉快!

购图前重要说明:

购买本套图纸仅提供打印好的图纸一份,我们不出售电子文件、光盘。我们设计的图纸非常详细,用A3规格打印图纸,比传统蓝图更清晰、容易复印、方便收藏,可以直接应用到施工现场。售后服务仅为图纸答疑,不包任何修改,因为只要其中一张图纸改变,其它图纸相应均需修改,工作量较大,所以我们不包修改。如果您个性要求较多需按要求订做设计,请查看别墅设计业务流程,并联系设计客服咨询设计收费标准。


快速导航
湖南柏竣建筑工程 湖南柏竣建筑工程 湖南柏竣建筑工程 湖南柏竣建筑工程 湖南柏竣建筑工程